Photo by Thomas J. Story
A day in the life of a houseboat
Not everyone needs to spend a couple of weeks earning their sea legs to feel at home. But that’s what happened to Matt and Jennifer Harvey in January 2009, when they moved into a 1,000-square-foot modern prefab houseboat on California’s Richardson Bay with their children, Jack and Grace (now 4 and 20 months).
The transition wasn’t without tradeoffs—including a major downsizing of belongings—but when the sun is shining and the tide is high, the family can’t imagine living anywhere else. “We open all the windows and doors,” says Matt, “the breezes come in, and it’s instantly summer.”
Photo by Thomas J. Story
7:00 - Wildlife watch
Matt and Jack enjoy aquarium-like views from the living room window.
“Jack always says he’s looking for sharks and jellyfish out his window, and it’s true, he really is—it’s not make-believe. Sometimes we even wake up at night to the heavy breathing of seals surfacing outside our bedroom window.” - Jennifer
Photo by Thomas J. Story
7:30 - Tide check
The Harveys live by the tide charts, their plans dictated by the bay’s water-level rise times throughout the day.
“Out here, it’s like we’re in touch with a different measure of time. It’s beautiful at high tide, when you’re floating and the water is all around you, but then we appreciate the low tide too: The mud summons the herons and sandpipers out to look for food.” –Matt
Photo by Thomas J. Story
10:15 - Morning walk
Jennifer and Grace check for mail at the head of their dock, the neighborhood hub.
“We’re definitely a community. In the city, you might know who lives next door, but your neighbor two or three doors down? Sometimes this much closeness can feel awkward, but it’s better—and healthier—than the isolating urban alternative.” –Jennifer
Photo by Thomas J. Story
12:00 - In to lunch
A super-efficient kitchen means meals run smoothly.
“Ultimately, a tight kitchen is a huge advantage. I’m not running back and forth all the time from the fridge to the counter to the stove. I set up just what I need, and things go right in the dishwasher when I’m done. It just seems natural to me now, that this is the way I cook.” –Jennifer
Photo by Thomas J. Story
3:40 - Land errands
Everything from the outside world must be carried in or, more often, wheeled in via repurposed shopping carts from the marina parking.
“We live green by necessity. It’s a long dock, so it’s ‘pack it in, pack it out.’ ” –Matt
Photo by Thomas J. Story
5:10 Friend by kayak
Jack thinks it’s totally normal that his best friend arrives by boat for a get-together.
“Jack doesn’t even need to put on his shoes to go over to his buddy’s house—he just needs his life jacket.” –Matt
Photo by Thomas J. Story
7:30 - Evening paddle
Matt and Jennifer enjoy after-dinner escapes on the water near dusk—one of their favorite times of day.
“When dinner is finished and the kids are in bed, one of us will grab the kayak and take a quick paddle around the neighborhood. It’s peaceful, but it’s not exactly quiet. There are constant squeaks and creaks and knocking from the boats and the gangways—that was something we had to get used to when we first moved here.” –Matt
Photo by Thomas J. Story
8:35 - Impromptu soiree
With friends close by, impromptu gatherings are the rule.
“When the weather’s warm, we do a lot of ‘Hey, we’re opening a bottle of wine on the roof deck. Want to come over?’ We’ll sit and talk and enjoy the night sky. Because we’re so far from the streets, there are no lights above and you can really see the stars.” –Matt
Photo by Thomas J. Story
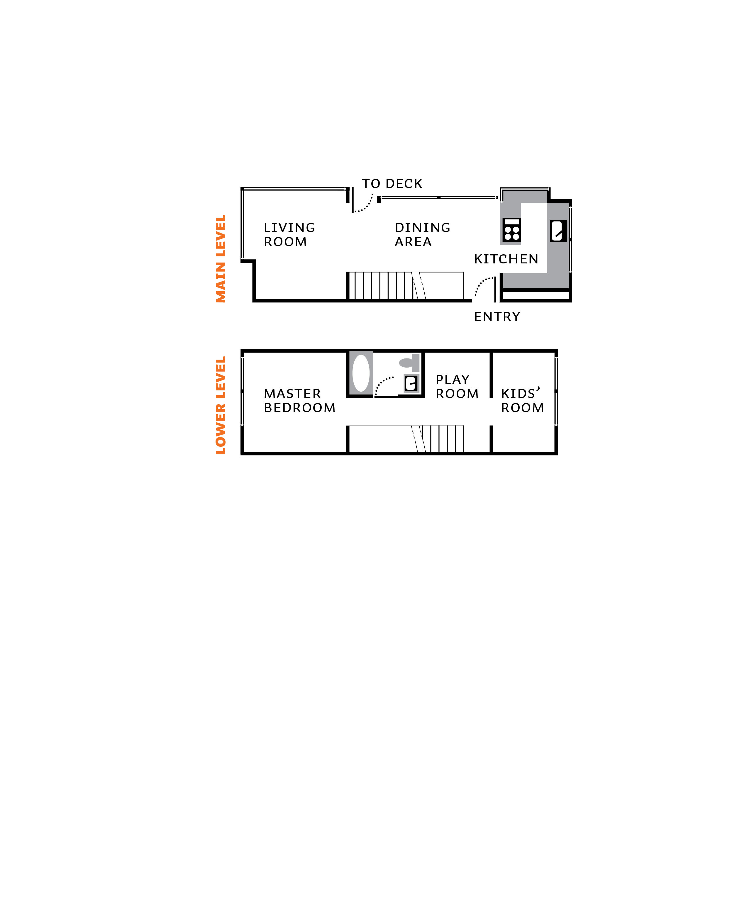
Making 1,000 square feet work for a family of four
- Be strict about capacity. Reach a point of equilibrium with your stuff and stick with it. “Our kids know when they get a new thing, they have to say goodbye to something else,” says Matt.
- Embrace imperfection. “I’m a cluttery person,” laughs Jennifer. “It’s when I stop pretending to be perfect and figure out a solution that the house works best.”
- Store it where you use it. In the kitchen, oven mitts and spatulas are to the right of the stove, and the blender and mixer reside on the countertop where Jennifer bakes.
- There’s always room for memories. “My grandmother’s waffle iron lives permanently on our stovetop,” says Jennifer. “I love it, so I make space for it, and we use it every day.”
Photo by Thomas J. Story
Like this? Check out more floating homes
Sausalito, CA: You can wander the docks anchoring the 300 or so floating houses at Kappas Marina and Waldo Point Harbor whenever you like. But a home tour (on hold now because of COVID-19; check floatinghomes.org for more info) lets you step inside up to 20 front doors.
Seattle: More than 500 homes float on Lake Union and Portage Bay. The docks are off-limits—except for the annual tour (seattlefloatinghomes.org), when you’re welcome to look inside about a dozen homes.
Always open? The waterways surrounding the homes. Rent a kayak at Northwest Outdoor Center (from $13 per hour; 206/281-9694).